
Profisionsfrei
Bezugs- und Provisionsfrei | 6-Parteienhaus – Starten Sie Ihr Wohnkonzept!
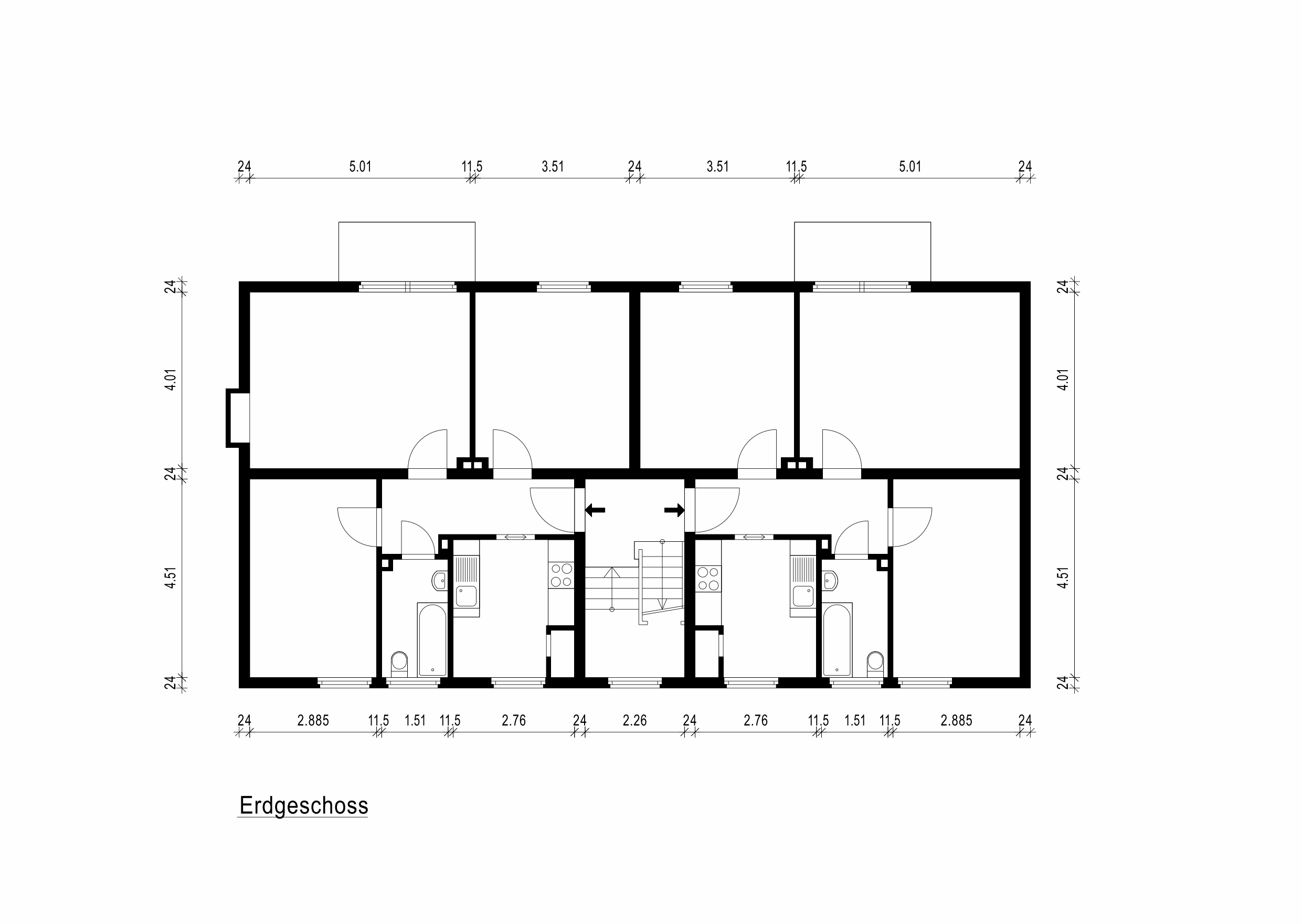
Das Grundstück liegt im Erbbaurecht bis 2104, Eigentümer ist das Hannoversche Klosterfond. Die jährliche Erbbauzinszahlung beträgt 6.956,90 Euro. Am begehrten Schölerberg in Osnabrück erwartet Sie eine Immobilie, die klassischen Anlagewert und attraktive Möglichkeiten vereint. Das Mehrfamilienhaus aus dem Jahr 1955 bietet eine Gesamtwohnfläche von rund 370 Quadratmetern, verteilt auf sechs Wohneinheiten mit unterschiedlichen Zuschnitten. Besonders interessant: Das Haus kann vollständig leer geliefert werden. So nutzen Sie maximale Flexibilität – ganz egal, ob Sie eine klassische Wohnraumvermietung, WG-Vermietung oder die Vermietung an Handwerkerwohnungen planen. Auf Wunsch stellen wir Ihnen einen Mieter, der die gesamte Anlage zum Sollmietpreis anmietet. Starten Sie von Tag eins an, ohne Streitigkeiten, teure Kündigungen oder ähnliche Probleme. Sie entscheiden, ob Sie das Objekt direkt zu marktgerechten Konditionen neu vermieten oder zunächst Modernisierungsmaßnahmen nach Ihren eigenen Vorstellungen umsetzen möchten. Zusätzlichen Mehrwert und Einnahmen liefern vier Garagen sowie sechs Außenstellplätze, die das Angebot abrunden und Ihre Mieterlöse stärken. Die mögliche Gesamtsollmiete beträgt 52.271,28 Euro pro Jahr und setzt sich aus den Wohnungs-, Garagen- und Stellplatzmieten zusammen. Damit bietet das Objekt eine solide, kalkulierbare Basis für nachhaltige Vermögensentwicklung und lässt sich individuell auf Ihre Anlagestrategie ausrichten.
Kaufpreis
749000
€
Status
Offen
Der Schölerberg ist eines der gefragtesten Wohngebiete in Osnabrück und verbindet das Beste aus zwei Welten: Eine naturnahe Umgebung direkt am beliebten Osnabrücker Zoo und dem botanischen Garten, gepaart mit einer hervorragenden Infrastruktur. Hier wohnen Sie oder Ihre Mieter im Grünen, erreichen aber das Stadtzentrum in wenigen Minuten – sei es mit dem Fahrrad, dem Auto oder den öffentlichen Verkehrsmitteln. Einkaufsmöglichkeiten, Schulen, Kindergärten und medizinische Versorgung sind fußläufig oder in kurzer Entfernung zu erreichen. Für Erholung und Freizeit bieten sich zahlreiche Spazier- und Radwege, Sportvereine und attraktive Parks an. In unmittelbarer Nachbarschaft befindet sich die Domschenke, ein traditionsreiches Restaurant, das Geschichte und Stil miteinander verbindet. Die Nachfrage nach Wohnraum am Schölerberg ist konstant hoch – nicht zuletzt aufgrund der guten Anbindung, der ruhigen Lage und des gepflegten Umfelds. Die Mischung aus urbaner Nähe und naturnaher Lebensqualität macht den Standort sowohl für Familien als auch für Singles und Paare attraktiv. Für Kapitalanleger bedeutet das: Ihr Investment profitiert von stabilen Mieterträgen und einer Wertentwicklung, die vom Standortvorteil getragen wird.
Zimmeranzahl:
12
Zimmer
Heizungsart:
Gas-Zentralheizung
Baujahr:
1955
Erbrecht Zins:
6957.00
€
Erbrecht Laufzeit:
2105
Grunstücksfläche:
1071
qm
Wohnfläche:
367
qm
Weitere Details:
+ Bezugsfrei
+ Gesamtwohnfläche: ca. 368 m² auf 6 Wohneinheiten
+ Sollmiete: 54.144 EUR p.a. (inklusive Vermietung der Garagen und Stellplätze)
+ Erbbaurecht: bis 2105 (aktueller Erbbauzins: 6.956,90 EUR/Jahr)
- Monatlicher Erbbauzins: ca. 580 Euro
+ Baujahr: 1955
+ Vollunterkellert
+ Eigene Kellerabstellraumplätze für jede Einheit
+ 4 Garagen & 6 Außenstellplätze
+ Fahrradabstellraum: Mehrwert für Mieter
+ Heizung: Linke Hausseite bereits mit neuer Gas-Zentralheizung, rechte Seite noch mit Gasetagenheizungen – Umstellung vorbereitet
+ Eine Wohnung im Rohbau: Auf Wunsch schlüsselfertig, gegen Aufpreis – Flexibilität und Entwicklungsreserve
+ Modernisierungspotenzial: Zusätzliche Wertschöpfung möglich
Art des Energieausweises:
Bedarfsausweis
Energieeffizienzklasse:
E
Endenergiebedarf:
147
kWh/(m²·a)
Heizungsart:
Gas-Zentralheizung
Wesentlicher Energieträger:
Erdgas
Baujahr:
1955
E
Zimmeranzahl:
12
Zimmer
Heizungsart:
Gas-Zentralheizung
Erbrecht Zins
6957.00
€
Erbrecht Laufzeit:
2105
Wohnfläche:
367
qm
Grunstücksfläche:
1071
qm
Baujahr:
1955
Lage:
Der Schölerberg ist eines der gefragtesten Wohngebiete in Osnabrück und verbindet das Beste aus zwei Welten: Eine naturnahe Umgebung direkt am beliebten Osnabrücker Zoo und dem botanischen Garten, gepaart mit einer hervorragenden Infrastruktur. Hier wohnen Sie oder Ihre Mieter im Grünen, erreichen aber das Stadtzentrum in wenigen Minuten – sei es mit dem Fahrrad, dem Auto oder den öffentlichen Verkehrsmitteln. Einkaufsmöglichkeiten, Schulen, Kindergärten und medizinische Versorgung sind fußläufig oder in kurzer Entfernung zu erreichen. Für Erholung und Freizeit bieten sich zahlreiche Spazier- und Radwege, Sportvereine und attraktive Parks an. In unmittelbarer Nachbarschaft befindet sich die Domschenke, ein traditionsreiches Restaurant, das Geschichte und Stil miteinander verbindet. Die Nachfrage nach Wohnraum am Schölerberg ist konstant hoch – nicht zuletzt aufgrund der guten Anbindung, der ruhigen Lage und des gepflegten Umfelds. Die Mischung aus urbaner Nähe und naturnaher Lebensqualität macht den Standort sowohl für Familien als auch für Singles und Paare attraktiv. Für Kapitalanleger bedeutet das: Ihr Investment profitiert von stabilen Mieterträgen und einer Wertentwicklung, die vom Standortvorteil getragen wird.
Weitere Details:
+ Bezugsfrei
+ Gesamtwohnfläche: ca. 368 m² auf 6 Wohneinheiten
+ Sollmiete: 54.144 EUR p.a. (inklusive Vermietung der Garagen und Stellplätze)
+ Erbbaurecht: bis 2105 (aktueller Erbbauzins: 6.956,90 EUR/Jahr)
- Monatlicher Erbbauzins: ca. 580 Euro
+ Baujahr: 1955
+ Vollunterkellert
+ Eigene Kellerabstellraumplätze für jede Einheit
+ 4 Garagen & 6 Außenstellplätze
+ Fahrradabstellraum: Mehrwert für Mieter
+ Heizung: Linke Hausseite bereits mit neuer Gas-Zentralheizung, rechte Seite noch mit Gasetagenheizungen – Umstellung vorbereitet
+ Eine Wohnung im Rohbau: Auf Wunsch schlüsselfertig, gegen Aufpreis – Flexibilität und Entwicklungsreserve
+ Modernisierungspotenzial: Zusätzliche Wertschöpfung möglich
Art des Energieausweises:
Bedarfsausweis
Energieeffizienzklasse:
E
Endenergiebedarf:
147
kWh/(m²·a)
Heizungsart:
Gas-Zentralheizung
Baujahr:
1955















